Terrain à vendre à Djerba zone touristique proche du Café Palm
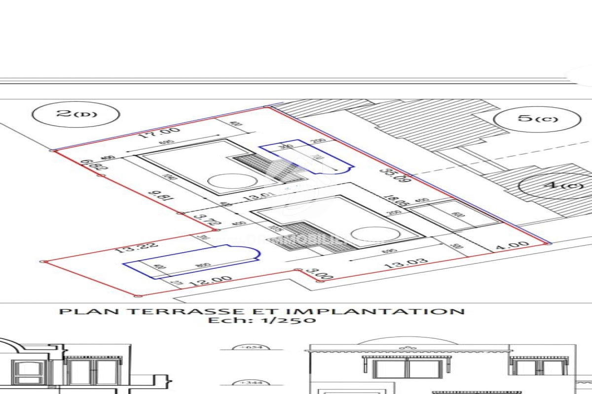
Terrain de 700 m2 bien situé dans un quartier calme et recherché, à proximité des hôtels et des résidences de standing.
Titre bleu individuel et permis de construire accordé pour deux villas avec piscine et étage.
Terrain en zone urbaine touristique, prêt à bâtir et accessible pour tout le monde.
Accès facile à la route principale et aux plages.
Prix 420 000 dinars
Avenue of Freedom Midoun, Midoun 4116, Tunisko
Email : contact@drimmobilier.com Mobil : (216) 58 151 412 / (216) 53 863 143 Kancelář : (216) 75 731 407 Fax : (216) 75 731 407