Terrain à vendre à Mezraya Djerba
Emplacement privilégié au bord de la route principale en hauteur offrant la possibilité d’une vue sur la mer à l’étage
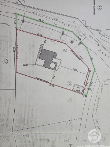
Surface totale 1192 m2
Surface restante à bâtir 844 m2
Titre bleu individuel
Permis de construire 2025 accordé
Terrain bien placé dans un quartier calme et recherché
Accès direct à la route principale
Documents administratifs complets et à jour
Prix 350 000 dt
Avenue of Freedom Midoun, Midoun 4116, Tunisko
Email : contact@drimmobilier.com Mobil : (216) 58 151 412 / (216) 53 863 143 Kancelář : (216) 75 731 407 Fax : (216) 75 731 407